7 Winston Street (Cnr Coyne Street), Kirra, Queensland 4225
+61 7 5590 6188
ROOM NAME RE-CLASSIFICATION: Following the development of a new property close to your Club Wyndham Kirra resort and the valued feedback we’ve received from you, our owners, we’ve made the decision to update the room names for those units, with views inhibited. These new room classifications will be available to view when booking online for reservations checking in from 1 July 2021 onwards.
Located on the southern end of Queensland’s Gold Coast, Club Wyndham Kirra Beach is close enough to explore the action by day and far enough to escape the hustle and bustle by night. Favoured by locals for its laid-back and tranquil environment, Kirra Beach is one of the Gold Coast’s best-kept secrets.
The Gold Coast beach resort boasts spacious, self-contained accommodation ideal for couples and families. The one, two and three-bedroom apartments offer practical holiday amenities including a fully equipped kitchen, laundry and balcony/courtyard showcasing ocean or hinterland views. Situated less than 100 metres from the Gold Coast’s popular Kirra Beach, Club Wyndham Kirra Beach also offers children-friendly resort facilities including a heated pool, mini golf, bike hire, playground and a seasonal kids’ club.
Kirra Beach is one of Australia’s best family holiday hot spots with plenty of activities and attractions to please all ages. The beach will keep you busy with a stroll at sunset, beach fishing at dusk, a leisurely swim, an adventure-packed scuba dive or even taking on the swell with a surfboard. The Gold Coast Hinterland is a great place to hike, where you can explore national parks, subtropical rainforests and waterfalls. Treat yourself to world-class shopping, explore a varied selection of theme parks or tempt yourself with an array of dining experiences.
CLUB WYNDHAM OWNER FREE ACTIVITIES:
Bike Hire
Boogie Board Hire
Mini Golf
Board Games
Surfboards
Club Wyndham Kirra Beach
7 Winston Street (Cnr Coyne Street), Kirra, Queensland 4225
Parking: Free limited secure underground parking – 1 car per 1 or 2 bedroom reservation, 2 cars per 3 bedroom reservation. 2.1 m height restriction. No onsite parking available for boats, trailers and water equipment
Kids Club: School Holidays Activities Program 5 – 12 years old (inclusive). Please contact reception to confirm days and sessions with the resort
1 x King size bed (cannot be split), 1 x Double sofa bed
Limited cots and highchairs available free of charge, on request
Rollaway beds available for $20AUD per night – must be requested prior to check-in and must not exceed maximum occupancy
1 Bathroom with shower over bath
Full kitchen with stovetop, oven, microwave, refrigerator and dishwasher
WiFi is available – Limit 4 devices at a time
Room Types:
1 Bedroom Low Floor – Located on floors 1-4
1 Bedroom Hinterland – Located on floors 5 -12 with hinterland views
1 Bedroom Ocean* – Located on floors 5 -12 with ocean views
1 Bedroom Special Needs – Specially designed apartment for people with special needs. Apartments have lower kitchen benches for easy access, wheel in showers and railings in the bathrooms (no bath). Located on floor 6.
*Please note due to the height of the new development, it has been identified that the view of potentially five of the 1 and 3 Bedroom Ocean View apartments will be partially obstructed. At this time there has been no decision to change the room names of these five apartments; the apartment descriptions will be updated to reflect the possibility of either a full or partial ocean view. Apartments will be allocated per the Best Fit System, with ocean view bookings made furthest out receiving the most desirable apartment.
1 x King size bed (cannot be split), 2 x Single Beds (can be joined by request), 1 x Double sofa bed
Limited cots and highchairs available free of charge, on request
Rollaway beds available for $20AUD per night – must be requested prior to check-in and must not exceed maximum occupancy
2 bathrooms – Ensuite with walk in shower and main bathroom with shower over bath
Full kitchen with stovetop, oven, microwave, refrigerator and dishwasher
WiFi is available – Limit 4 devices at a time
Apartment Types:
2 Bedroom Low Floor – Located on floors ground -4 floor
2 Bedroom Hinterland – Located on floors 5 -13 with hinterland views
2 Bedroom Ocean – Located on floors 5 -13 with ocean views
2 Bedroom Special Needs – Specially designed apartment for people with special needs. Apartments have a medium kitchen with stovetop, microwave, refrigerator and dishwasher (no oven), lower kitchen benches for easy access, wheel in showers and railings in the bathrooms (no bath). Located on floors 6,7
1 x King size bed (cannot be split), 1 x Queen size bed, 2 x Single beds (can be joined by request), 1 x Double sofa bed
Limited cots and highchairs available free of charge, on request
Rollaway beds available for $20AUD per night – must be requested prior to check-in and must not exceed maximum occupancy
2 bathrooms – Ensuite with walk in shower and main bathroom with shower over bath
Full kitchen with stovetop, oven, microwave, refrigerator and dishwasher
WiFi is available – Limit 4 devices at a time
Apartment Types:
3 Bedroom Low Floor – Located on floors 1-4
3 Bedroom Hinterland – Located on floors 5 -13 with hinterland views
3 Bedroom Ocean* – Located on floors 5 -13 with ocean views
*Please note due to the height of the new development, it has been identified that the view of potentially five of the 1 and 3 Bedroom Ocean View apartments will be partially obstructed. At this time there has been no decision to change the room names of these five apartments; the apartment descriptions will be updated to reflect the possibility of either a full or partial ocean view. Apartments will be allocated per the Best Fit System, with ocean view bookings made furthest out receiving the most desirable apartment.
1 x King size bed (cannot be split), 1 x Double sofa bed
Limited cots and highchairs available free of charge, on request
Rollaway beds available for $20AUD per night – must be requested prior to check-in and must not exceed maximum occupancy
1 Bathroom with shower over bath
Full kitchen with stovetop, oven, microwave, refrigerator and dishwasher
WiFi is available – Limit 4 devices at a time
Room Types:
1 Bedroom Low Floor – Located on floors 1-4
1 Bedroom Hinterland – Located on floors 5 -12 with hinterland views
1 Bedroom Ocean* – Located on floors 5 -12 with ocean views
1 Bedroom Special Needs – Specially designed apartment for people with special needs. Apartments have lower kitchen benches for easy access, wheel in showers and railings in the bathrooms (no bath). Located on floor 6.
*Please note due to the height of the new development, it has been identified that the view of potentially five of the 1 and 3 Bedroom Ocean View apartments will be partially obstructed. At this time there has been no decision to change the room names of these five apartments; the apartment descriptions will be updated to reflect the possibility of either a full or partial ocean view. Apartments will be allocated per the Best Fit System, with ocean view bookings made furthest out receiving the most desirable apartment.
1 x King size bed (cannot be split), 2 x Single Beds (can be joined by request), 1 x Double sofa bed
Limited cots and highchairs available free of charge, on request
Rollaway beds available for $20AUD per night – must be requested prior to check-in and must not exceed maximum occupancy
2 bathrooms – Ensuite with walk in shower and main bathroom with shower over bath
Full kitchen with stovetop, oven, microwave, refrigerator and dishwasher
WiFi is available – Limit 4 devices at a time
Apartment Types:
2 Bedroom Low Floor – Located on floors ground -4 floor
2 Bedroom Hinterland – Located on floors 5 -13 with hinterland views
2 Bedroom Ocean – Located on floors 5 -13 with ocean views
2 Bedroom Special Needs – Specially designed apartment for people with special needs. Apartments have a medium kitchen with stovetop, microwave, refrigerator and dishwasher (no oven), lower kitchen benches for easy access, wheel in showers and railings in the bathrooms (no bath). Located on floors 6,7
1 x King size bed (cannot be split), 1 x Queen size bed, 2 x Single beds (can be joined by request), 1 x Double sofa bed
Limited cots and highchairs available free of charge, on request
Rollaway beds available for $20AUD per night – must be requested prior to check-in and must not exceed maximum occupancy
2 bathrooms – Ensuite with walk in shower and main bathroom with shower over bath
Full kitchen with stovetop, oven, microwave, refrigerator and dishwasher
WiFi is available – Limit 4 devices at a time
Apartment Types:
3 Bedroom Low Floor – Located on floors 1-4
3 Bedroom Hinterland – Located on floors 5 -13 with hinterland views
3 Bedroom Ocean* – Located on floors 5 -13 with ocean views
*Please note due to the height of the new development, it has been identified that the view of potentially five of the 1 and 3 Bedroom Ocean View apartments will be partially obstructed. At this time there has been no decision to change the room names of these five apartments; the apartment descriptions will be updated to reflect the possibility of either a full or partial ocean view. Apartments will be allocated per the Best Fit System, with ocean view bookings made furthest out receiving the most desirable apartment.
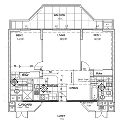
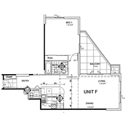
*Individual floor plans may vary depending on the location, room type and size of the unit.
Credit Chart & Seasonality
Resort Credit Calculator
Click here to instantly calculate the credits required for your holiday
Club Wyndham Asia Login
Please enter the details you have received. Click on the 'Find' button to continue.
Please enter the below details
Please enter the below details
Please enter the below details
IHC Member Login
Our Owner Services hours of operation have temporarily changed, as a result of staff absences due to isolation requirements of COVID-19. We will now close at 6pm Australian Eastern Standard Time so we can provide more support during the busier hours of the day.
If you have exhausted your annual Club housekeeping entitlement, you can proceed with your online reservation by selecting the ‘borrow housekeeping’ box prior to proceeding with your reservation.
If your reservation meets the minimum night requirements, a housekeeping token will be returned to your account the next business day. Alternatively you can call Owner Services to make the eligible booking using complimentary housekeeping.
Please note that Privileges complimentary housekeeping will only be awarded for an eligible stay once you have exhausted your annual Club housekeeping entitlement.
For more information please visit
https://clubwyndhamsp.com/activitieshub/changes-to-developer-benefits/